|
Sıcak
Yolluk Sistemi Özellikleri:
- Açık
Akış Kanalı
- Dengeli
Malzeme Akışı
- Değişmeyen
bir Isıl Denge
- Yeterli
Isıtıcı Güç Kapasitesi
- Isıl
Genlemelere karşı gerekli önlemler
- Hızlı
Renk Değişimi


Sıcak
Yolluk Sistemi Avantajları:
- İşçilikten
tasarruf (yolluk temizleme, kırma)
- Düşük
çevrim süresi(runner, gate, açma mesafesi)
- Malzemeden
tasarruf
- Makine
kapasitesinden tasarruf
- Yüksek
parça kalitesi ( P,T, kesme gerilmeleri)
Sıcak
Yolluk Sistemi Gereksinimleri:
- Saf
(temiz) plastik kullanımı
- Hassas
sıcaklık kontrolu (kapalı çevrim)
- İyi
bir kalıp tasarımı
- Hassas
bir kalıp üretimi
- Dikkatli
bir kalıp bakımı
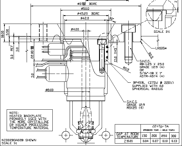
Kalıp
Tasarımı:
- Sıcak
yolluk firmasının önerdiği tasarıma tümü ile uyulmalıdır.
Ölçü ve toleranslar, hava boşlukları, sıcak yolluk sisteminin
montajında kullanılacak vida tipi, boyutu, adedi, montaj
yöntemi, sıkma torkları tamamen sıcak yolluk üreticisinin
tasarımına uygun olmalıdır.
- Kalıp
tasarımında da manifold ve sıcak yolluk memelerindeki
genleşmeler ile boyut değişiklikleri ve eksen kaçıklıkları
olacağı hesaba katılarak gerekli boşluklar verilmelidir.
Malzeme:
- Kalıpta
kullanılan manifold plakasının sertliği minimum 35-42
HRc olmalıdır.
- Ayrıca
manifold merkezleyicilerinin bastığı yüzeylerde sertleştirilmiş
plakalar (45-50HRc) kullanılmalıdır.
- Yolluk
giriş bölgesindeki kalıp çeliğinin kalitesi en az
1.2344 ve 48-50HRc olmalıdır.
Soğutma:
- Yolluk
girişinin karşısında,kalıbın erkek tarafında müstakil
bir soğutma çevrimi kullanılmalıdır.
- Valf
girişler için bu soğutma çevrimi püskürtme tipi spiral
bir soğutma olmalıdır.
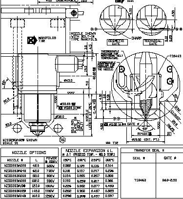
- Kozmetik
parçalarda parça yüzeyinde hale şeklinde izlere (dalgalanmalara)
mani olabilmek için yolluk giriş ucunun etrafında
da ayrı bir soğutma çevrimi dikkate alınmalıdır.
Kalıp
Üretimi:
- Yolluk
giriş bölgesinde EDM işlemi uygulanmamalı, uygulanır
ise, çeliğin sertleşip kırılganlaşmasını önleyecek düşük
amperlerin kullanıldığı parlatma kalitesindeki bir erozyon
işlemi yapılmalıdır.
- Bu
bölge çeliğinde sertleşme yaratabilecek hiç bir nitrürasyon
ve krom kaplama gibi işlemlerde uygulanmamalıdır.
- Çok
gözlü kalıplarda yolluk giriş bölgelerindeki çap derinlik
gibi tüm boyutlarda ölçü farklılıkları 0.02 mm yi geçmemelidir.
- Enjeksiyon
yapılan malzemenin gerektirdiği kalıp sıcaklığı 400C
nin üzerinde ise kalıbın bağlantı plakasının üzerinde
bir izolasyon plakası kullanılmalıdır.
- Manifold
plakasının alt kısmında (kalıbın alt tarafında) boşaltma
delik veya kanalları açılmalıdır. Bu sayede herhangi
bir nedenle su veya hidrolik kaçağının manifold plakası
içindeki ısıtma ve ölçme kabloları ile teması ve kısa
devre olasılığı azaltılmış olacaktır.
- Özellikle
çok gözlü kalıplarda kalıbı enjeksiyon makinesinden
sökmeden, yolluk giriş uclarına ve sıcak yolluk memelerine
kolayca erişebilmek için kalıbın dişi plakasını erkek
plakasına sabitleyebilecek bir kilit sistemi öngörülmelidir.
Sıcak
Yolluklu Kalıpların Çalıştırılması
Enjeksiyon makinesine bağlamadan önce:
- Sıcak
yolluk sistemindeki her sıcak yolluk memesi ve her manifold
bölgesi için "Sıcaklık Kontrol Cihazın" da ayrı bir sıcaklık
kontrol kartı kullanılmalıdır.
- Kalıbı
prese bağlamadan önce tüm ısıtıcı ve sıcaklık ölçerlerin,
kablo bağlantılarında kopukluk ve kısa devre olmadığı kontrol
edilmelidir.
- Sıcak
yolluk sisteminin, "sıcaklık kontrol cihazı" ile bir ön
ısıtmaya tabii tutulması önerilir.
- Isıtıcı
resistanslarında kopukluk olmadığı daima ohmmetre ile kontrol
edilmeli.
- Isıtıcının
ohm değeri, Mold-Masters'ın teknik resminden kontrol edilmeli.
- Isıtıcı
tel ile toprak arasında hiç bir ohm değeri okunmamalı.
- Nem
almış ısıtıcılarda Megaohm değerleri (250 Kohm - 10 Mohm)görülebilir.
Bu durumda ısıtıcılar kurutulana kadar 100-120C arasında
ısıtılmalıdır.
- İzolasyonun
resistansı 250 Kohm değerinin altında ise ısıtıcıya hiç
bir zaman tüm güç uygulanmamalıdır.
- Sıcaklık
ölçer kablolarının "+" ve "-" ucları ohmmetre ile kontrol
edilmeli.
- Sıcaklık
ölçerin ucuna ısı uygulandığında ohmmetre ibresi hareket
etmiyor ise sıcaklık ölçer değiştirilmeli.
- Sıcaklık
ölçerin uzunluğuna göre ohmmetre de 9 ila 25 ohm arasındaki
değerler okunmalıdır.
- Daima
"Soft Start" özelliği olan Sıcaklık Kontrol Cihazı kullanılmalı.
- Hiç
bir zaman yüzdelik li (açık çevrimli) sıcaklık kontrolu
kullanılmamalıdır.
- Enjeksiyondan
önce sıcak yolluk sisteminin ısıtıcı planından, bölge numaralarına
göre hangi sıcak yolluk memesinin hangi kalıp bölgesinde
olduğundan ve sıcaklık kontrol cihazının hangi ısıtıcı bölgesine
bağlı olduğundan emin olunmalıdır.
- Isıtıcı
bağlantı şeması, kalıpla birlikte makineye gitmelidir (Standart
şema+könnektör).
|