14-11-2009
629
FSN
Bursa
|
9 farklı ürünün yıllık toplam 3 milyon adetten fazla talaşlı imalatı?..
Ekte ventil parçalarına ait teknik resimler verilmiştir. Lütfen yüzey pürüzlülük toleransları genel ölçü toleranslarına çok dikkat ediniz. Eğer teklif veremeyeceğiniz bir ürün ise lütfen teklif veremeyeceğinizi, eğer teklif verebileceğiniz ürünler ise teklif çalışması yaptığınız belirtiniz. 3 iş günü içinde teklifinizi göndereceğiniz düşünülmektedir. Eğer malzeme tedariki vb konusunda gecikmeniz olacak ise bunu da bize belirtiniz.
Aşağıda teknik resimlerin üzerinde gördüğünüz ortak Almanca ve İngilizce kelimelerin Türkçe anlamları bulunmaktadır;
Werkstoff: hammadde
Tolerance class: tolerans sınıfı
Surface qualiy: yüzey kalitesi
General tolerances: genel toleranslar
Mass: kütle ağırlık
Descriptiaon: tanımlama
Finised size: bitmiş ölçü
Alernative: alternatif
Oder: veya
Corners: köşeler
Resim üzerinde gördüğünüz ürünün fiyatını değiştireceğini düşündüğünüz ve anlamını bilemediğiniz teknik işaret veya yabancı dilde bir terim görürseniz lütfen arayıp sorunuz.
Bazı ürünler kaplamalıdır, normlar aşağıdaki gibidir:
EN 12329-Fe//Zn5-8//C/T4 çinko kaplama sarı kromat
EN 12329-Fe//Zn5-8//B/T4 çinko kaplama mavi kromat
Not: Detaylı teknik resimler için tıklayınız: connectorts.pdf
|
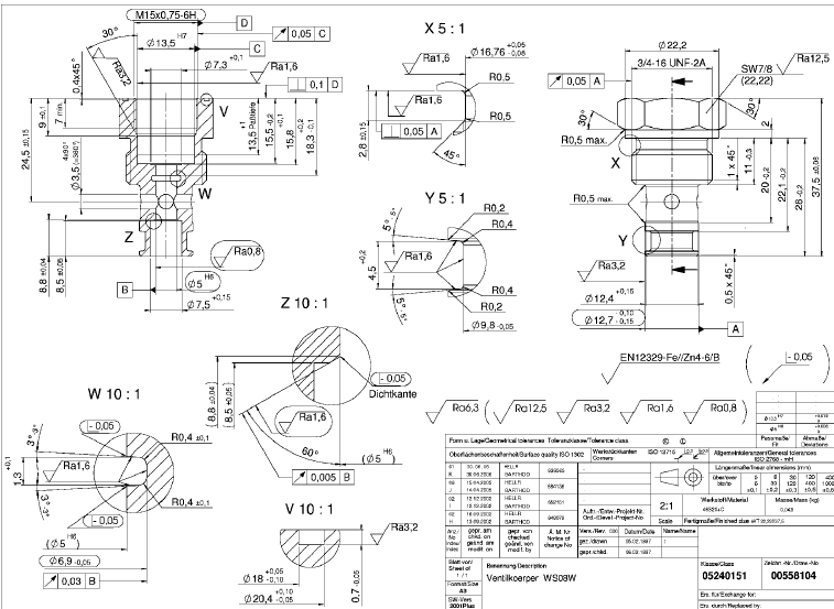
ürün adı 558104 yıllık alım miktarı 500.000 adet
hammaddesi: 46S20+C, EN 12329-Fe//Zn4 çinko ve sarı kromat kaplamalı
ürün kodu 3001917, yıllık 1.000.000 adet
hammadde: 9SMnPb28 veya 9SMn28
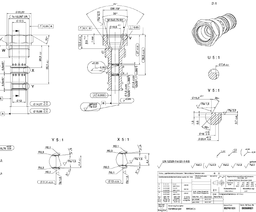
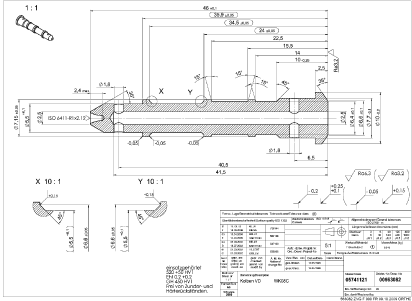
ürün kodu: 563203, yıllık 300.000 adet (2 parçadan oluşmakta 560021 ve 563082)
mit 11-16 micon spiel in pos. 10 eingeschliffen: tolerans 11-16 micron
kanten: köşe
560021 için hammadde 11SMnPb30+C EN 12329-Fe//Zn4 çinko ve sarı kromat kaplamalı
563082 için hammadde 11SMnPb30+C
einsatzgehärtet: karbon sertleştirmesi
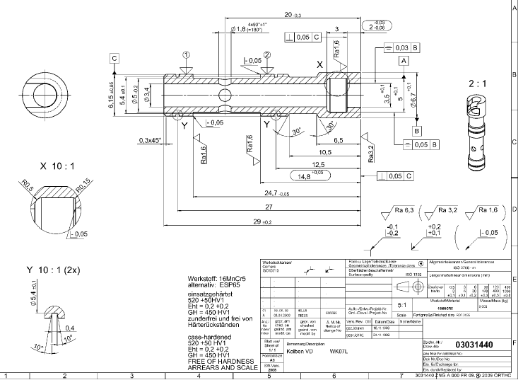
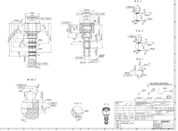
ürün kodu: 3031619, yıllık 50.000 adet (2 parçadan oluşmakta 3031440 ve 3031571)
mit 9-15 micon spiel in pos. 10 eingeschliffen: tolerans 9-15 micron
kanten: köşe
3031571 için hammadde 16MnCr5 veya ESP65, EN 12329-Fe//Zn5-8//C/T4 çinko ve sarı kromat kaplamalı
3031440 için hammadde 16MnCr5 veya ESP65
einsatzgehärtet: karbon sertleştirmesi
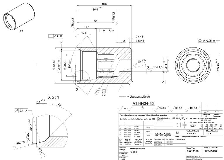
ürün kodu 555186, yıllık 50.000 adet
hammadesi: 11SmnPb30+C
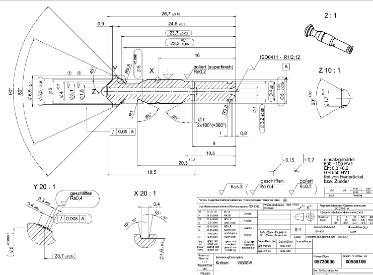
ürün kodu 558106, yıllık 500.000 adet
hammaddesi: 16MnCr5
einsatzgehärtet: karbon sertleştirmesi
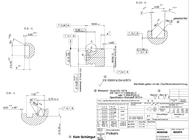
ürün kodu 3003870, yıllık 500.000 adet
hammadesi 11SMnPb30+C veya 11SMn30+C
alle maße gelten mit der oberflachenbeschichtung: malzemenin tüm yüzeyine uygulanacak kaplama EN 12329-Fe//Zn4-6//B/T4 çinko ve sarı kromat kaplamalı
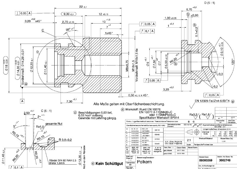
ürün kodu 3002749, yıllık 100.000 adet,
hammadesi 11SMnPb30+C veya 11SMn30+C
alle maße gelten mit der oberflachenbeschichtung: malzemenin tüm yüzeyine uygulanacak kaplama EN 12329-Fe//Zn4-6//B/T4 çinko ve sarı kromat kaplamalı
ürün kodu 3352796, yıllık 100.000 adet
hammaddesi 11SMnPb30+C veya 11SMn30+C
EN 12329-Fe//Zn4-6//B/T4 çinko ve sarı kromat kaplamalı












